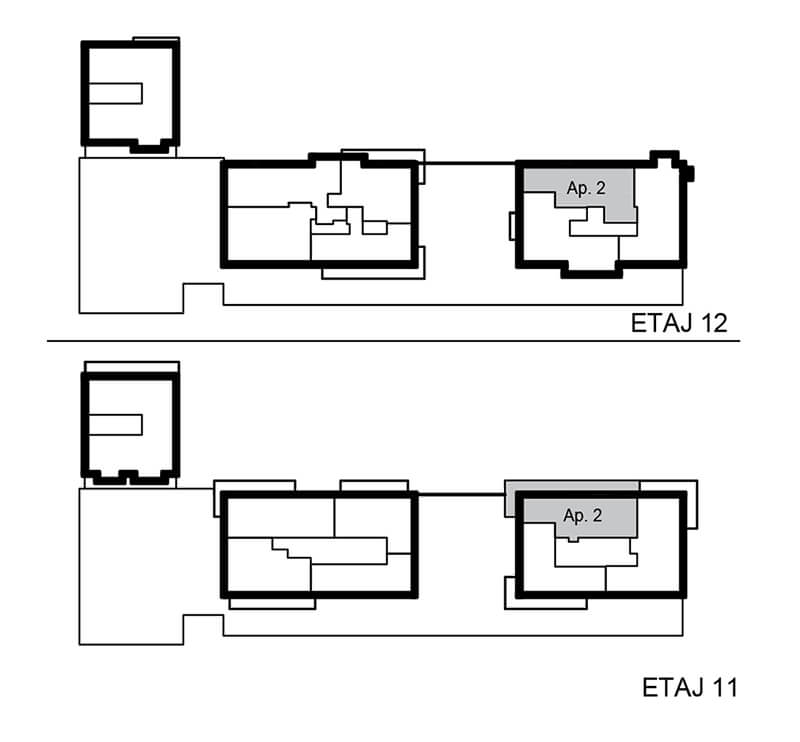
Duplex D.2.D.2
Usable area 11
99.52 mp
Terrace area 11
56.64 mp
Usable area 12
104.52 mp
Terrace area 12
- mp
Total usable area
204.04 mp
Total terrace area
56.64 mp

1. Living room + dining + staircase + hallway 67.06 mp 2. Kitchen 20.57 mp 3. Bathroom 6.46 mp 4. Hall 5.43 mp 5. Balcony 56.64 mp 6. Bedroom 1 28.01 mp 7. Bedroom 2 25.09 mp 8. Dressing 9 mp 9. Bathroom 10.48 mp 10. Bathroom 10.47 mp 11. Washer 3.68 mp 12. Staircase + hallway 17.79 mp

